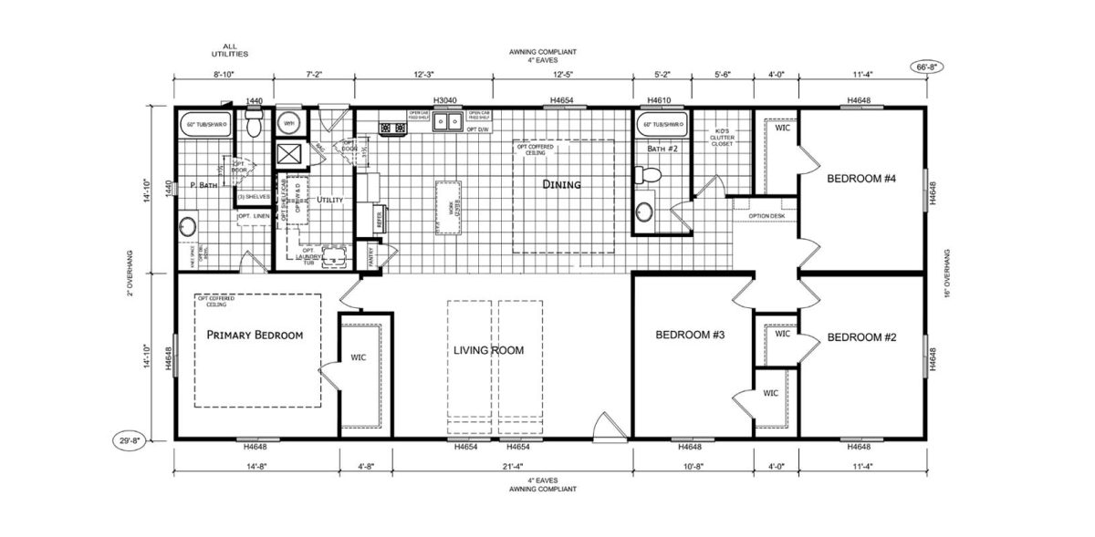
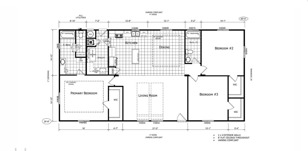
$ 164,752
*Online price is for the base model only (no options) and does not include setup and delivery.
A place to call your own
Beyond just building you a house, we’re committed to providing you and your family with a home to make memories in that will last a lifetime. Somewhere you can feel secure. A place you can call your own. A home that fits your lifestyle and has your own personal touch. Whether you’re an active young family constantly on the go or empty nesters ready to simplify, just relax – we have a home that’s right for you.
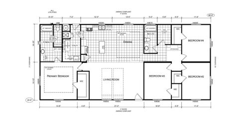
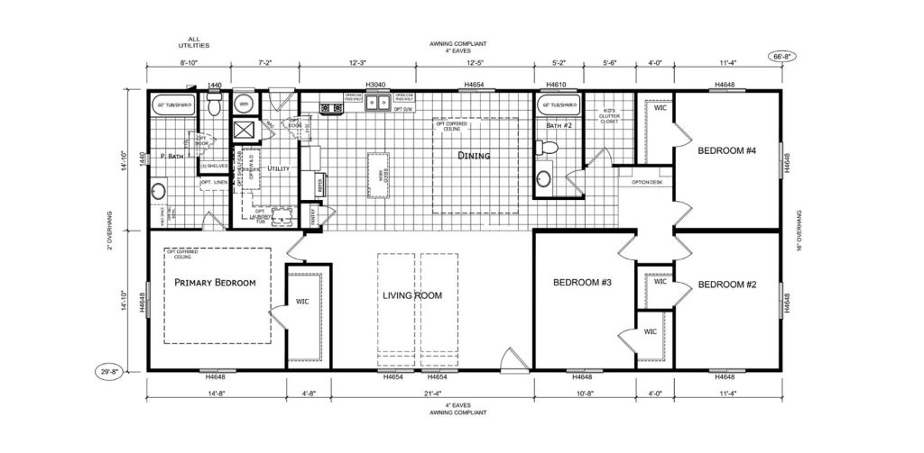
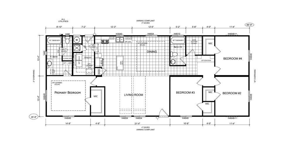
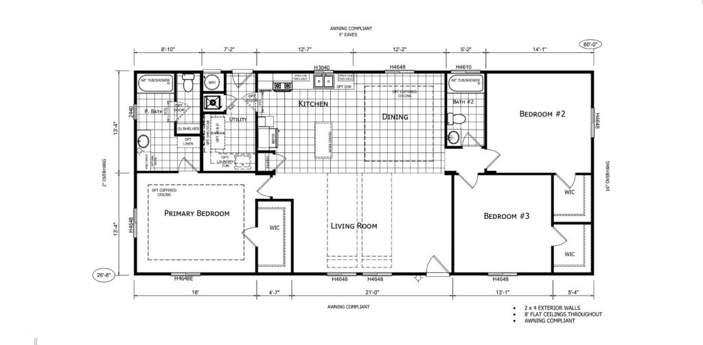
Gallery



